ルネ ファンタグラーレ府中是政 312

4,490万円

東京都府中市是政4丁目4-22

西武多摩川線「是政」駅徒歩7分

京王線「多磨霊園」駅徒歩17分

価格
4,490万円
間取り
3LDK
向き
南東
所在地
東京都府中市是政4丁目4-22
交通

西武多摩川線是政」駅 徒歩7分

京王線多磨霊園」駅 徒歩17分

専有面積
81.81㎡
築年月
2008年3月(築17年)

物件の特徴

  • 浴室乾燥機

  • オートロック

セールスポイント

スムーズに購入まで辿り着けるということも中古マンションの利点です。3LDKの中古マンションです。幅広い層の方に好評の、4,490万円台の物件です。リモート会議のようにすぐに応対できないときでも、宅配ボックスに荷物が届くので大変便利です。住まい探しで大切なことは、信頼できる不動産会社を選ぶことです。弊社では、お客様としっかり向き合い、住まい探しをサポート致しますので、安心してお任せください。

ポイント

宅配ボックス 2面バルコニー 東南向き 角住戸 浄水器

担当者のコメント

辰岡 宇宙

専有面積81.81㎡もありますので、ご検討ください。バルコニーが7.1㎡の大きさの物件です。暖かみのある日差しが気持ちいい東南向きの中古マンションです。南東向きの物件のご紹介です。物件の向きも確認しておきましょう。府中市エリア内にある是政周辺で不動産をお求めなら、地域に詳しい当社にお任せ下さい。新生活を快適にスタートできるよう、しっかりとサポートいたします。

基本情報

管理費
13,900円
修繕積立金
18,800円
修繕積立基金
-
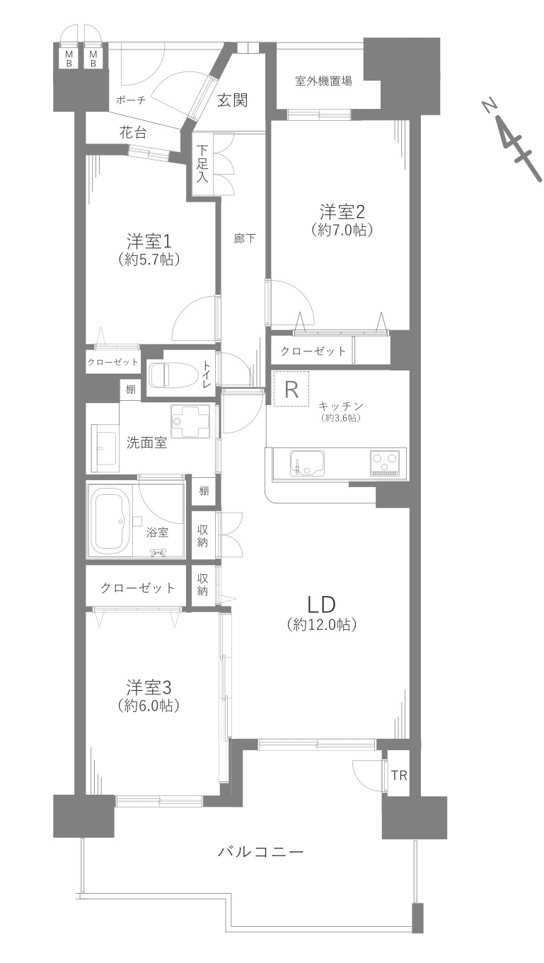
間取り / 詳細
3LDK
3LDK+2WIC+SIC
向き
南東
専有面積
81.81㎡
バルコニー面積
7.10㎡
その他面積
-
-
-
所在階 / 階建て
3階 / 8階建
建物構造
鉄筋コンクリート
築年月
2008年3月(築17年)
種別
中古マンション
土地権利
所有権
土地
(敷金 / 保証金)
- / -
国土法届出要否
不要
接道状況
-
用途地域
準工業
地勢
-
都市計画
-
現況
空家
引渡し
即時
取引態様
仲介
棟総戸数
119戸
管理形態
管理会社に全部委託
管理会社 /
管理組合有無
株式会社長谷工コミュニティ / -
取引条件の
有効期限
2025年11月23日

設備条件

設備条件
  • ペット相談 / ペット飼育可 / リフォーム済 / 2面バルコニー / 追焚機能浴室 / 浴室乾燥機 / 温水洗浄便座 / オートロック / 宅配ボックス / 角部屋
設備(その他)
    -

その他

物件番号
98452278
管理コード
-
建築確認番号
-
情報更新日
2025年11月09日
次回更新予定日
2025年11月23日
備考
バルコニーが2面付いています。こちらは東南向きの物件です。浴室乾燥機付きのお風呂場のある物件です。オートロック設備が付いており、防犯性が高いです。住まい探しで大切なことは、信頼できる不動産会社を選ぶことです。弊社では、お客様としっかり向き合い、住まい探しをサポート致しますので、安心してお任せください。

支払いシミュレーション

月々の支払額
9.6
購入希望物件価格
万円
頭金
万円
金利
%
返済額(ボーナス1回分)
万円
返済期間

※ボーナスは自動で年2回分で計算されます。

近隣の物件

  1. エルフォレスト ガーデンウィング棟

    府中市浅間町3丁目

    3LDK (78.91㎡)

    4,599万円

  2. グリーンハイム

    府中市南町2丁目

    3LDK (62.45㎡)

    2,790万円

  3. レクセルガーデン西国分寺

    府中市武蔵台1丁目

    3LDK (63.08㎡)

    3,990万円

  4. ボヌール府中

    府中市宮西町5丁目

    3LDK (67.98㎡)

    5,698万円

ルネ ファンタグラーレ府中是政

ルネ ファンタグラーレ府中是政

4,490万円

13,900円

3LDK(81.81㎡)

お気軽にお問い合わせください

LINEからお問い合わせ 無料お問い合わせ

株式会社アルファ土地販売

042-595-8765

9:00〜19:00

(休:水曜日)